OFERTA NA WYŁĄCZNOŚĆ! NIE SZUKAJ DALEJ!
Mam przyjemność zaprezentować Państwu ofertę nowoczesnego wygodnego i przestronnego domu znajdującego się w Strzelcach Górnych.
Nieruchomość zlokalizowana jest w pięknej, spokojnej okolicy z bardzo dobrym dojazdem do Centrum Bydgoszczy jak i Fordonu.
Dom o całkowitej powierzchni 299,56 m2 ma przemyślany rozkład i jest w pełni funkcjonalny. Nieruchomość składa się z wielu pomieszczeń, które można zagospodarować według własnych preferencji i potrzeb. Wedle dokumentacji powierzchnia użytkowa nieruchomości wynosi 207,09 m2.
Dojazd do nieruchomości drogą gruntową. Po sąsiedzku zadbane domy jednorodzinne. Sąsiedztwo sprawdzone i sympatyczne. Świetna propozycja dla rodzin, które cenią sobie bliskość natury, ale jednocześnie dobry dojazd do centrum Bydgoszczy.
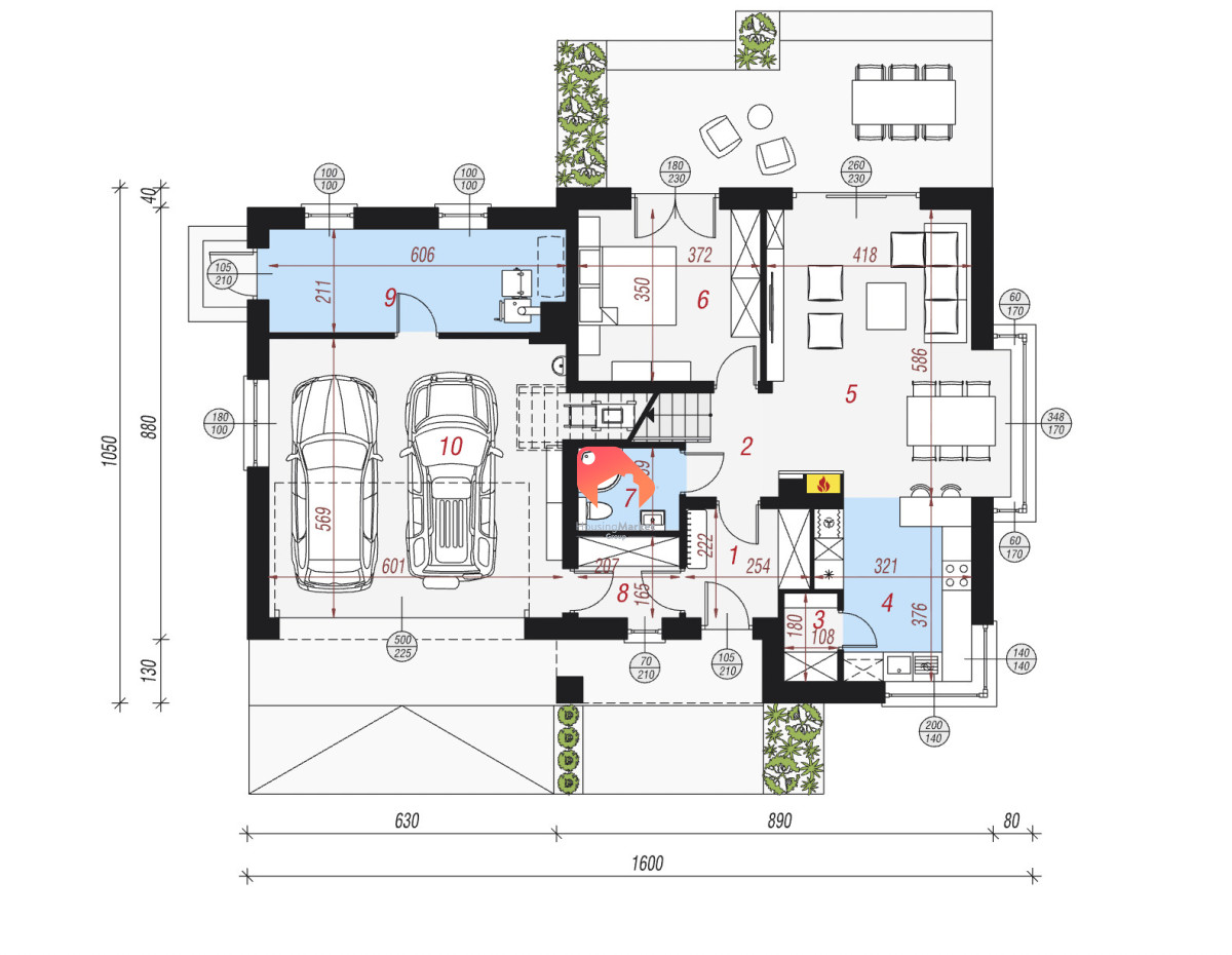
Na powierzchnię domu składają się:
Parter o powierzchni o 111,80 m2:
1. korytarz - 8,34 m2;
2. kuchnia - 10,62 m2 z dużą ilością blatów roboczych, w pełni wyposażona, z widokiem na ogród i ulicę;
3. spiżarnia - 1,85 m2
4. hall - 2,66 m2
5. pokój dzienny z jadalnią - 26,52 m2 - wraz z wyjściem na taras
6. pokój - 12,70 m2 - świetny jako pokój dla gości lub gabinet;
7. łazienka - 3,36 m2
8. garaż w bryle budynku - 33,61 m2, przestronny dwu-stanowiskowy;
9. kotłownia / pomieszczenie gospodarcze - 12,15 m2
Piętro o powierzchni 119,44 m2 :
1. klatka schodowa - 3,82 m2 - Wykończona kamieniem oraz szkłem
2. otwarte pomieszczenie wraz z siłownią - 34,49 m2
3. pralnia - 5,68 m2
4. główna łazienka z wanną i prysznicem - 8,10 m2
5. główna sypialnia - 19,53 m2
6. garderoba - 7,40 m2
7. sypialnia 2 - 14,57 m2
8. sypialnia 3 - 14,00 m2
9. przedpokój/korytarz - 11,85 m2, z którego wchodzimy do wszystkich pomieszczeń niezależnie;
STANDARD BUDYNKU MIESZKALNEGO/DOMU:
- Dach wielospadowy kryty dachówką.
- Elewacja beżowa - tynk strukturalny.
- Instalacja elektryczna miedziana.
- Instalacja fotowoltaiczna typu full black na dachu o mocy - 10 KW
- Opomiarowane prąd i woda.
- Ogrzewanie podłogowe z pompy ciepła .
- Na poziomie parteru wszystkie okna zaopatrzone w rolety zewnętrzne.
- rekuperacja
- Instalacja smart home
- przygotowanie pod montaż klimatyzacji
- 4 kamery monitoringu
- Nieruchomość ogrodzona z każdej ze stron.
- Na bramie wjazdowej do nieruchomości siłowniki automatyczne sterowane pilotem.
LOKALIZACJA:
Cicha, spokojna okolica. W bliskości natury i lasów. Jednocześnie nieruchomość ta stanowi idealne miejsce dla osób ceniących spokój, komfort, i bliskość miasta. Odległość od Bydgoszczy ok 15 km. W Gminie Dobrcz, wysoko rozwinięta infrastruktura usługowo - handlowa. W okolicy domu szkoła, przedszkole.
Stan prawny : pełna własność z KW.
ZAPRASZAM DO KONTAKTU!
Idealny nowy ekologiczny dom! Fotowoltaika + Pompa
lokalizacja: Strzelce Górne, Sielska
1 450 000,00 PLN
4 840,43 PLN
Dane szczegółowe
- Typ transakcji: sprzedaż
- Typ nieruchomości: Dom
- Lokalizacja: Strzelce Górne, Sielska
- Powierzchnia:299,56 m2
- Liczba pokoi: 8
- Rok budowy: 2022
- Liczba pięter: 1
-
Powierzchnia działki:
1 010 m2
- Numer oferty: 498643
- Cena: 1 450 000,00 PLN
- Cena za m2: 4 840,43 PLN
Opis nieruchomości
Kontakt do opiekuna:
Housing Market Sp. z o.o.